Skip to main content
Price $329,000.00
Beds 1
Baths
1/2 Baths
Square Feet 3045
Year Built 1959

4002 Chadbourne St
San Angelo, TX 76902
United States

PRICE

$
329,000
.00

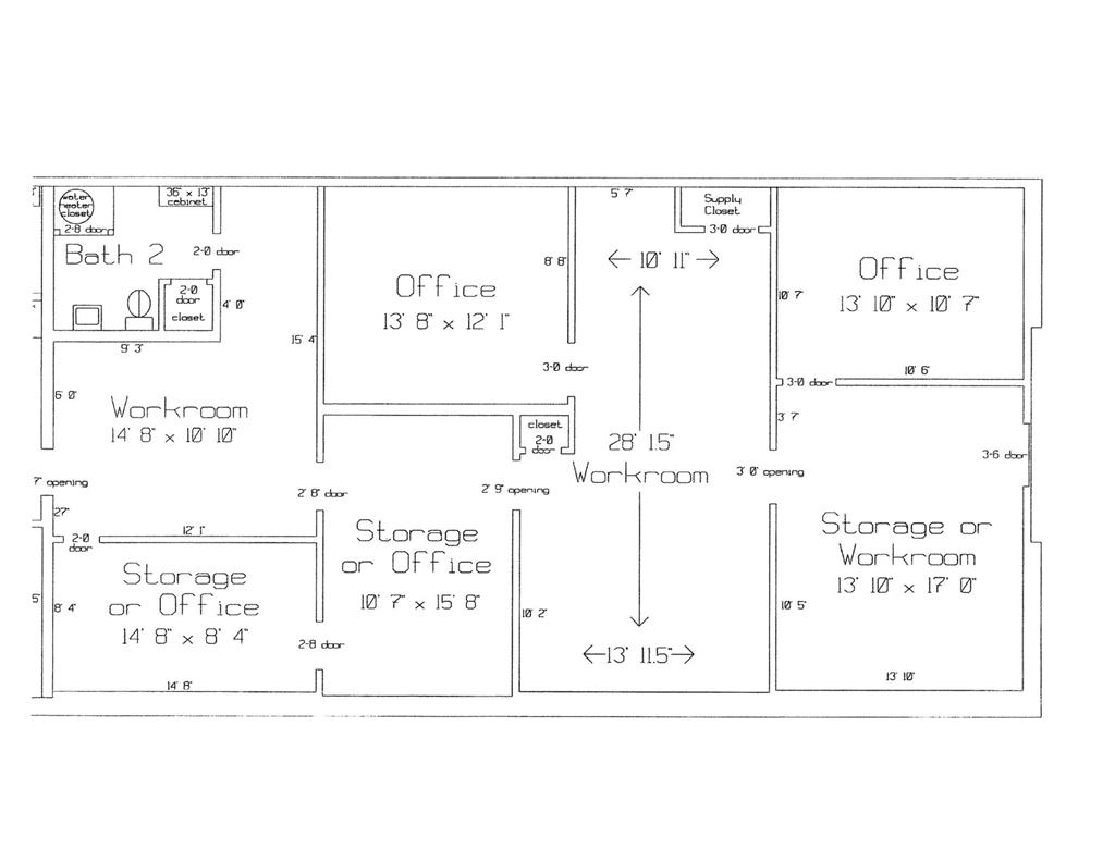
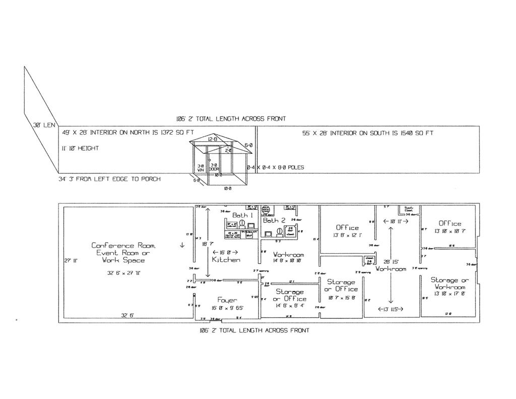
Large office on 3/4 of an acre in a high traffic area. Several offices, foyer, conference room, kitchen, storage area, 2 bathrooms and several multi-use areas. This is a very versatile space that could be used for office, retail, events, etc. Hail resistant TPO roofing replaced in April 2023, building exterior painted in April 2023. Large parking lot in front and gated, fenced yard with storage buildings. floor plan drawings attached in photos.

Last Modified
Bedrooms
1
Listing Status
Active
List Date
Nov 11, 2024
Subdivision
6561
Year Built
1959
Square Feet
3045
CF_A_Age
50
CF_B_Location
Corner Lot
CF_C_Construction
Block
CF_D_Roofing
Membrane
CF_F_floors
02,04
CF_G_parking
01,02,03
CF_H_traffic_count
2,500-5,000
CF_I_Type_Business
04,14,50
CF_J_Misc
06,09,11,15
CF_N_Land_Status
Land Included
CF_O_Heating
Central Forced Gas
CF_P_Cooling
Central Electric
CF_Q_Utilities
05,07
Supplement_Remarks
Legal: Acres: 0.723, Abst: A-8046 S-0009, Survey: T H DAWSON, 0.7230 ACRES IN DAWSON & SA & MG RR SUR 11 A1954
Real Estate Agent

Kimberly Kelley