Skip to main content
Price $2,800,000.00
Beds 3
Baths 2
1/2 Baths 0
Square Feet 2182
Year Built 2025

9401 Collett Rd
Robert Lee, TX 76945
United States

PRICE

$
2,800,000
.00
Lot Size
approx 630ac

**Prime Hunting Retreat in Coke County** Located just 5 miles from Robert Lee, The A5 Ranch offers an exceptional opportunity for avid hunters and nature enthusiasts alike. Spanning approx. 630 high-fenced acres, this property is a turnkey paradise with a new 2800 sq ft home under construction, set for completion in January 2025. The home's paid contract will convey to the buyer- plans available upon request. The ranch is meticulously equipped with 5 run-off ponds, one stocked with bass and catfish, providing excellent fishing opportunities. Water resources are abundant with two water wells and Coke County Water servicing the house. For wildlife management, the property includes two 4-acre soft release pens, each with a reliable water source. Wildlife on the ranch is diverse and thriving, featuring over 60 whitetail deer, 10 oryx, 9 blackbuck, 10 aoudad, 10 buffalo, and 2 fallow.Hunting is made easy with 5 blinds, 5 feeders, and 5 protein feeders. 40x60 barn, skid steer w/ attachments

Last Modified
Bedrooms
3
Listing Status
Active
List Date
Oct 22, 2024
Subdivision
Other
Acres
630.00 acres
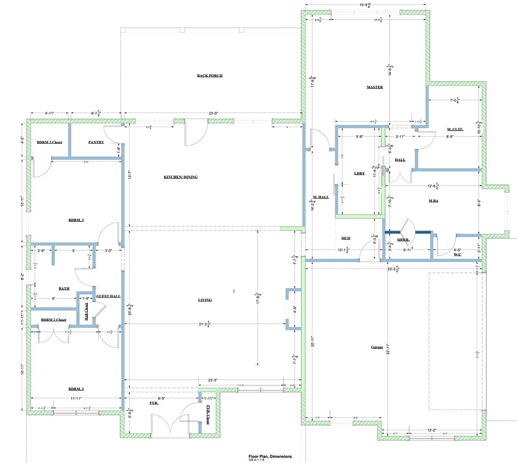
Master Bedroom Dimensions
16x15
Bedroom 2 Dimensions
11x12
Bedroom 3 Dimensions
11x12
Dining Room Dimensions
w/kit
Utility Dimensions
6x4
Full Bath
2
Half Bath
0
Year Built
2025
Square Feet
2182
Elementary School
1287
Middle School
Robert Lee
High School
Robert Lee High School
Lot Description
03,08,20
Virtual Tour
Real Estate Agent

Kassie Harper